賃貸条件
| 賃料 | 584,000円(税別) |
|---|---|
| 坪単価 | 4,993円 |
| 敷金(保証金) | 4ヶ月 |
| 礼金 | 1ヶ月 |
| 使用開始日 | 即日 |
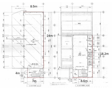
物件概要
| 物件所在地 | 神奈川県秦野市南矢名 |
|---|---|
| 建物床面積 | 116.97坪(386.68m2) |
| 敷地面積 | 294.93坪(974.98m2) |
| 面積内訳 |
倉庫:1階70.18坪 2階46.79坪 |
| 建物構造 |
鉄骨造 |
| 軒高 | - |
| 用途地域 | 第一種住居地域 |
| 前面道路幅員 | - |
| 建物階数 |
2階建 |
| 備考 | - |
周辺地図
※周辺地図ですので、実際の所在地とは異なる場合がございます。
このエリアのおすすめ物件
神奈川県市区町村一覧
- 横浜地区 (186件) 横浜市神奈川区 (10件) 横浜市港北区 (56件) 横浜市青葉区 (2件) 横浜市鶴見区 (21件) 横浜市都筑区 (45件) 横浜市緑区 (6件) 横浜市西区 (1件) 横浜市中区 (4件) 横浜市南区 (0件) 横浜市保土ヶ谷区 (4件) 横浜市旭区 (7件) 横浜市瀬谷区 (7件) 横浜市磯子区 (1件) 横浜市港南区 (2件) 横浜市戸塚区 (5件) 横浜市金沢区 (8件) 横浜市栄区 (2件) 横浜市泉区 (5件)
- 川崎地区 (42件) 川崎市川崎区 (17件) 川崎市麻生区 (0件) 川崎市幸区 (7件) 川崎市高津区 (6件) 川崎市中原区 (3件) 川崎市多摩区 (4件) 川崎市宮前区 (5件)
- 横須賀三浦地区 (7件) 横須賀市 (6件) 鎌倉市 (1件) 逗子市 (0件) 三浦市 (0件) 葉山町 (0件)
- 県央地区 (188件) 相模原市緑区 (18件) 厚木市 (39件) 大和市 (16件) 海老名市 (20件) 座間市 (10件) 綾瀬市 (18件) 愛川町 (5件) 清川村 (0件) 相模原市中央区 (52件) 相模原市南区 (10件)
- 湘南地区 (59件) 平塚市 (15件) 藤沢市 (18件) 茅ヶ崎市 (5件) 秦野市 (10件) 伊勢原市 (3件) 寒川町 (8件) 大磯町 (0件) 二宮町 (0件)
- 県西地区 (14件) 小田原市 (9件) 南足柄市 (1件) 中井町 (1件) 大井町 (2件) 松田町 (0件) 山北町 (1件) 開成町 (0件) 箱根町 (0件) 真鶴町 (0件) 湯河原町 (0件)























