ホーム > 東京都の貸倉庫 > 八王子・日野・立川エリアの貸倉庫 > 東京都日野市新町5丁目の貸倉庫・工場 (2595.00坪)
賃貸条件
| 賃料 | 15,570,000円(税別) |
|---|---|
| 坪単価 | 6,000円 |
| 敷金(保証金) | 6ヶ月 |
| 礼金 | 1ヶ月 |
| 使用開始日 | 相談 |
物件概要
| 物件所在地 | 東京都日野市新町5丁目 |
|---|---|
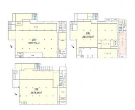
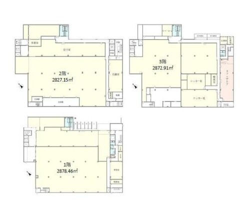
| 建物床面積 | 2595.00坪(8,578.53m2) |
| 敷地面積 | - |
| 面積内訳 |
倉庫:2595坪 |
| 建物構造 |
鉄骨造 |
| 軒高 | - |
| 用途地域 | 工業地域 |
| 前面道路幅員 | - |
| 建物階数 |
3階建 |
| 備考 | 多摩工業団地 |
周辺地図
※周辺地図ですので、実際の所在地とは異なる場合がございます。
このエリアのおすすめ物件
東京都市区町村一覧
- 国立・府中・調布・国分寺エリア (77件) 国分寺市 (1件) 三鷹市 (10件) 小金井市 (0件) 武蔵野市 (0件) 国立市 (4件) 町田市 (26件) 多摩市 (2件) 調布市 (16件) 府中市 (15件) 稲城市 (3件) 狛江市 (0件)
- 八王子・日野・立川エリア (71件) 立川市 (10件) 八王子市 (51件) 日野市 (5件) あきる野市 (4件) 奥多摩町 (0件) 檜原村 (0件) 日の出町 (1件)
- 武蔵村山・東久留米・清瀬エリア (48件) 東大和市 (3件) 西東京市 (3件) 小平市 (2件) 武蔵村山市 (18件) 清瀬市 (2件) 東久留米市 (6件) 東村山市 (14件)
- 青梅・羽村・昭島・瑞穂エリア (41件) 青梅市 (14件) 羽村市 (6件) 福生市 (2件) 昭島市 (6件) 瑞穂町 (13件)
- 中央・千代田・港・新宿エリア (25件) 中央区 (5件) 千代田区 (4件) 港区 (3件) 渋谷区 (1件) 新宿区 (3件) 杉並区 (3件) 中野区 (6件)
- 練馬・板橋・北・豊島・文京エリア (69件) 文京区 (5件) 豊島区 (8件) 練馬区 (21件) 板橋区 (28件) 北区 (7件)
- 江戸川・江東・足立・台東・葛飾エリア (233件) 江戸川区 (49件) 江東区 (34件) 足立区 (71件) 葛飾区 (35件) 荒川区 (7件) 墨田区 (24件) 台東区 (13件)
- 大田・品川・目黒エリア (72件) 大田区 (46件) 品川区 (12件) 目黒区 (3件) 世田谷区 (11件)
























