ホーム > 千葉県の貸倉庫 > 市川・浦安エリアの貸倉庫 > 千葉県市川市本行徳の貸倉庫・工場 (1108.05坪)
賃貸条件
| 賃料 | 4,210,400円(税別) |
|---|---|
| 坪単価 | 3,800円 |
| 敷金(保証金) | 3ヶ月 |
| 礼金 | 1ヶ月 |
| 使用開始日 | 相談 |
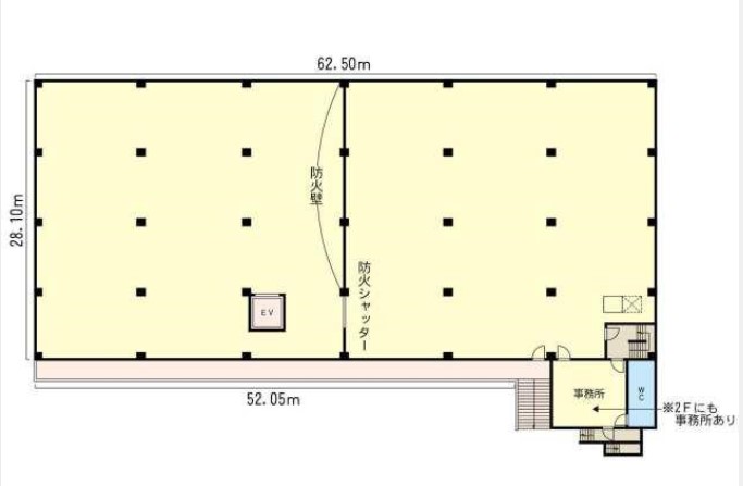
物件概要
| 物件所在地 | 千葉県市川市本行徳 |
|---|---|
| 建物床面積 | 1108.05坪(3,662.98m2) |
| 敷地面積 | 799.81坪(2,644.00m2) |
| 面積内訳 |
倉庫:1階:554坪、2階:554坪 |
| 建物構造 |
鉄骨造 |
| 軒高 | - |
| 用途地域 | 工業専用地域 |
| 前面道路幅員 | - |
| 建物階数 |
2階建 |
| 備考 | 事務所有り エレベーター トイレ |
周辺地図
※周辺地図ですので、実際の所在地とは異なる場合がございます。
このエリアのおすすめ物件
千葉県市区町村一覧
- 千葉市全域・四街道エリア (61件) 千葉市稲毛区 (11件) 千葉市中央区 (4件) 千葉市花見川区 (17件) 千葉市緑区 (4件) 千葉市美浜区 (5件) 千葉市若葉区 (10件) 四街道市 (10件)
- 松戸・我孫子・柏エリア (80件) 我孫子市 (1件) 柏市 (38件) 流山市 (8件) 野田市 (17件) 松戸市 (16件)
- 市川・浦安エリア (27件) 市川市 (18件) 浦安市 (9件)
- 習志野・船橋・八千代エリア (53件) 習志野市 (8件) 船橋市 (22件) 八千代市 (15件) 印西市 (3件) 鎌ヶ谷市 (2件) 白井市 (3件)
- 佐倉・成田・富里・銚子エリア (60件) 佐倉市 (4件) 成田市 (17件) 富里市 (4件) 八街市 (22件) 神崎町 (0件) 栄町 (1件) 酒々井町 (3件) 芝山町 (4件) 横芝光町 (0件) 旭市 (0件) 香取市 (3件) 匝瑳市 (0件) 銚子市 (0件) 多古町 (2件) 東庄町 (0件)
- 市原・木更津・君津・鴨川エリア (25件) 市原市 (15件) 木更津市 (6件) 君津市 (1件) 鴨川市 (0件) 袖ヶ浦市 (1件) 館山市 (0件) 富津市 (2件) 南房総市 (0件) 鋸南町 (0件)
- 勝浦・東金・茂原・山武エリア (20件) 勝浦市 (0件) 東金市 (4件) 茂原市 (4件) いすみ市 (1件) 大網白里市 (1件) 山武市 (4件) 一宮町 (0件) 大多喜町 (1件) 御宿町 (0件) 九十九里町 (1件) 白子町 (1件) 長南町 (0件) 長柄町 (2件) 睦沢町 (0件) 長生村 (1件)






















